Properiété/5495 3e Avenue































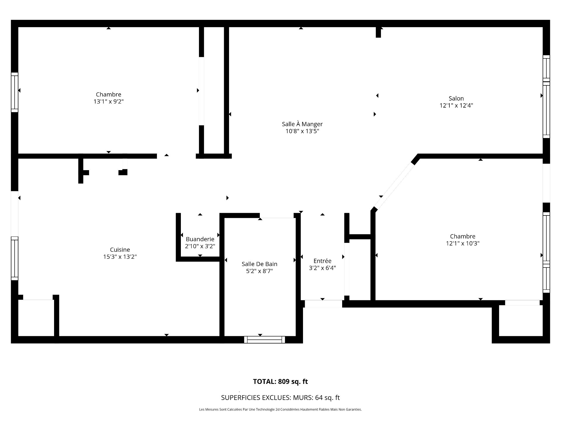
Located in the heart of Old Rosemont, at 5495 3rd Avenue, this 2-bedroom divided condo is situated on the 2nd floor of a building with only two units, a rarity in the area. Bright and full of character, it offers two balconies, a backyard, and a storage space in the basement. Meticulously maintained, it stands out as much for its charm as for its recent renovations. Within walking distance of Masson Avenue, its shops, cafes, and restaurants, as well as Pelican Park, it offers a desirable living environment that combines urban vibrancy with green spaces.
Over the past few years, several improvements have been
made:
- Installation of hardwood floors (2017)
- Complete bathroom renovation (2018)
- Front balcony structure repairs (2018)
- Replacement of front and rear doors and windows (2017 to
2019)
- Complete replacement of the rear balcony and staircase
structure (2021)
THE UNIT:
* Large divided condo located on the 2nd and top floor of a
row house duplex
* Kitchen with ample cabinetry and a small removable
central island, access to the rear balcony.
* Master bedroom with access to the front balcony.
* Children's bedroom with a large closet and a loft bed
frame included.
* Renovated bathroom with a shower/tub combination.
* Registered storage space.
* Beautiful hardwood floors.
THE EXTERIOR -- ENJOYABLE SPACES:
* Front and rear balconies. * Beautiful, private, and
fenced backyard offering excellent privacy.
LOCATION -- CLOSE TO AMENITIES:
* Within walking distance of Masson Avenue, you'll enjoy
easy access to its shops, cafes, restaurants, and services.
* Pelican Park, known for its lively atmosphere and
activities, is also nearby, offering a great balance
between neighbourhood life and green spaces, as is Rosemont
Park.
* Just a short bike ride from bike paths.
* Elementary and high schools within walking distance.
* Botanical Garden, Montreal Municipal Golf Course, Olympic
Park, etc.
TRANSPORTATION -- EASY WITH MULTIPLE OPTIONS!
* Next to several bus lines.
* Close to BIXI and Communauto stations.
* Easy access to various highways: Highways 15, 19, 40,
Routes 134 and 138, and the Jacques-Cartier Bridge. * Quick
access to downtown via multiple transportation options.
*** A condo offering an appealing combination of character,
extensive renovations, and a desirable location.
Properiété MLS: 27804868
Superficie: 80.3 MC
Chambres: 2
Salles de bain: 1
Garages: 0
Roofing
Asphalt and gravel
Proximity
Bicycle path, Cegep, Cross-country skiing, Daycare centre, Elementary school, Golf, High school, Highway, Hospital, Park - green area, Public transport, University
Siding
Brick
Window type
Crank handle, Hung
Heating energy
Electricity
Landscaping
Fenced
Available services
Fire detector
Topography
Flat
Sewage system
Municipal sewer
Water supply
Municipality
Restrictions/Permissions
Pets allowed with conditions
Equipment available
Private balcony, Private yard, Wall-mounted heat pump
Windows
PVC
Zoning
Residential
Heating system
Space heating baseboards
Rental appliances
Water heater
Cupboard
Wood